Casa GarPON
Bosques del pedragal, Chihuahua, Ch. Mx.
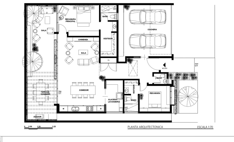
Casa Garpon is a fully integrated residential project that began as an interior design and Feng Shui consultation, and evolved into a comprehensive architectural vision. By collaborating from the earliest stages alongside the architectural design process, we were able to shape the layout from its very conception, aligning spatial planning with Feng Shui principles. The result is a cohesive project that seamlessly brings together architecture, interiors, energy flow, and façade design into one harmonious and intentional home.


























































Dany demonstrated an exceptional ability to understand and translate my ideas into a tangible design. She perfectly captured what I envisioned for my home—even those details that were difficult to put into words. Her sensitivity in interpreting my taste, needs, and lifestyle was reflected in every space throughout the house.
In addition to her talent as an interior architect, her Feng Shui certification brought a very special value to the project. Each area was designed with harmony, balance, and an energy that can truly be felt throughout the home. The result is a space that is not only aesthetically beautiful, but also functional, inviting, and filled with a sense of well-being. All of my family and friends fell in love with our home because the design is truly one of a kind!
Dany worked with great professionalism, creativity, and attention to detail throughout the entire process. She was always open to listening, offering solutions, and ensuring that every element contributed to the final result.
Thanks to her talent and dedication, I can truly say that I now have the home of my dreams.
I have also hired her for other projects, and once again, she proved to be a professional capable of transforming ideas into extraordinary spaces. I will always be grateful to her!
Ph. D. Olga Ponce


