Innovation and development center
Grupo Cementos de Chihuahua, Chihuahua, México.
This project holds a special place for me—my most ambitious and beloved to date. While the engineering team defined the functional layout, I was entrusted with the creative vision: to express not only the building itself, but everything that happens within it.
Set within an active industrial plant, surrounded by heavy machinery and sober constructions, the challenge was to create something that could both belong and stand out. The façade emerged as a direct response to its context and orientation—a more closed western face, layered with a superposition of materials produced by the company itself, each in different finishes. Its form was shaped through a deeper reading of the company’s impact on the identity and economy of Chihuahua. Conceived as a landmark, the silhouette draws inspiration from the presence of Cerro Grande—an unmistakable symbol of the city—and pays homage to the Sierra de Nombre de Dios, where the raw material that fuels the company originates.
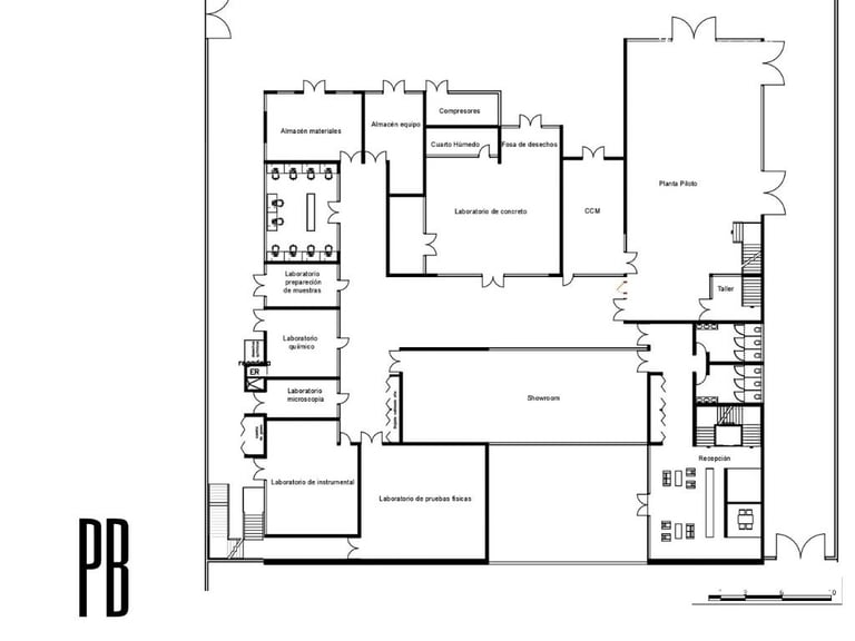
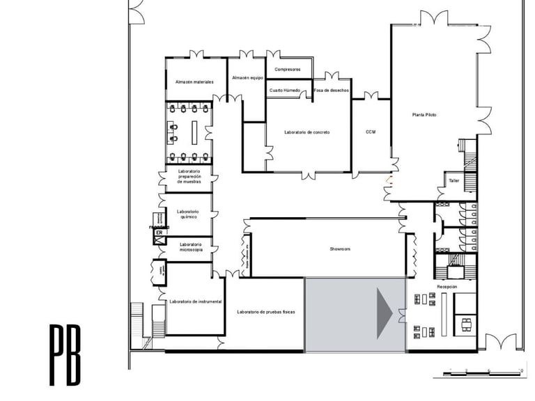
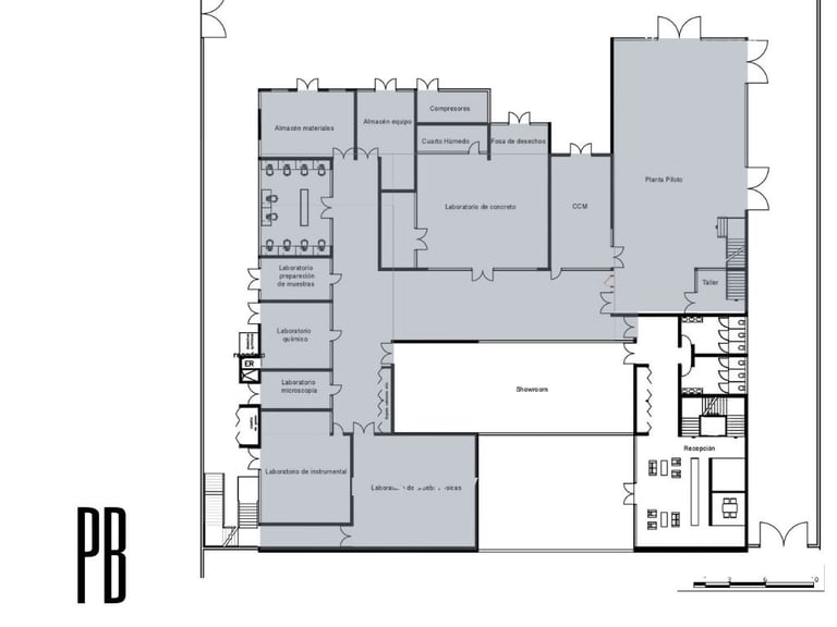
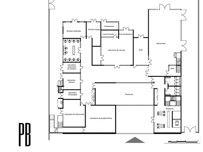
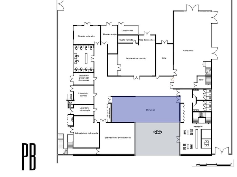
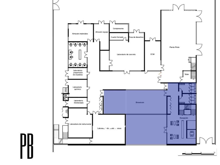
Inside, the building is designed as a place of discovery. A large front-facing showcase introduces visitors to the company’s products and processes, but beyond a traditional showroom, the intention is to create an immersive experience—one that feels less like a materials lab and more like an interactive museum.






















































